сдам в аренду торговля, услуги г. Минск, Октябрьский район, Лученка ул. 29 (#437885)
-
Стоимость: м2 38.21 BYN
-
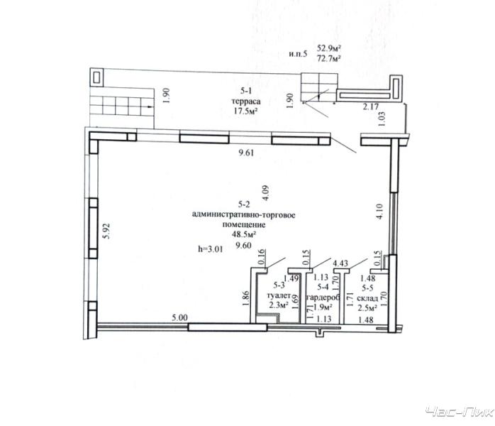
Площадь общ.: 72,7
-
Этаж/Этажность: 1/25
-
Материал стен: каркасно-блочный
-
Тип аренды: долгосрочная аренда
-
Вода: центральный водопровод
-
Горячая вода: есть горячая вода
-
Отопление: центральное отопление
-
Электричество: есть свет
-
Канализация: центральная канализация
Сдаётся в аренду административно-торговое помещение по ул. Игоря Лученка, д.29 в квартале «Южная Америка» в Минск-Мире. Помещение общей площадью 72.7 кв.м с отдельным входом расположено на 1 этаже. Есть терраса 17.5 кв.м. огорожена, два входа, один - с пандусом. В помещении сделан ремонт, на полу керамогранит, стены и потолок окрашены, в санузле современная качественная сантехника. Панорамные окна, радиаторы с терморегуляторами, потолки 3,1 м. Установлена пожарная сигнализация с ежемесячным обслуживанием, кондиционер, приточно-вытяжная вентиляция, электрическая мощность 10 кВт. В пешей доступности станция метро «Аэродромная», остановки общественного транспорта, удобный выезд в центр города и на МКАД. Район заселен, хороший пешеходный и автомобильный трафик. Многочисленные машиноместа возле дома. Рядом новый ТЦ «Авиа Молл». Помещение можно использовать под различные сферы бизнеса и стрит-ритейла. Звоните! организуем просмотр в удобное время и ответим на ваши вопросы.
Цена сделки определяется по соглашению сторон. Расчеты осуществляются в белорусских рублях в соответствии с законодательством Республики Беларусь.
Просмотров: сегодня 3, за последние 7 дней 10, за месяц 35







