сдам в аренду торговля, услуги г. Минск, Центральный район, микрорайон Лебяжий, Победителей пр. 131 (#436756)
-
Стоимость: м2 47.76 BYN / 17.01 $
-
Площадь общ.: 81,6
-
Этаж/Этажность: 1/7
-
Материал стен: каркасно-блочный
-
Тип аренды: долгосрочная аренда
-
Вода: центральный водопровод
-
Горячая вода: есть горячая вода
-
Отопление: центральное отопление
-
Электричество: есть свет
-
Канализация: центральная канализация
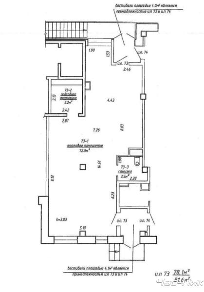
Помещение общей площадью 81,6 м² с отделкой располагается на первом этаже многоэтажного жилого дома на проспекте Победителей, 131. Помещение с отделкой, все коммуникации, два отдельных входа: со стороны проспекта и со стороны двора. Арендная ставка 47,76 руб/кв.м с НДС. Отличное местоположение в современном развитом районе Рядом остановки общественного транспорта, пр-т Победителей, автомобильная развязка МКАД Хороший пешеходный трафик Вдоль всего проспекта Победителей размещается множество объектов торговли и услуг Многочисленные парковочные места возле дома Помещение отлично подойдет под общепит, кафе, торговлю и т.д. В доме расположились многочисленные организации, представляющие свои товары и услуги в сфере строительства и декора: напольные покрытия, обои, электрика, сантехника, дизайнерские студии. Поможем подобрать помещение в аренду без дополнительных оплат.
Цена сделки определяется по соглашению сторон. Расчеты осуществляются в белорусских рублях в соответствии с законодательством Республики Беларусь.
Просмотров: сегодня 0, за последние 7 дней 7, за месяц 32







