сдам в аренду торговля, услуги г. Минск, Центральный район, Победителей пр. 129 (#436343)
-
Стоимость: м2 48.96 BYN
-
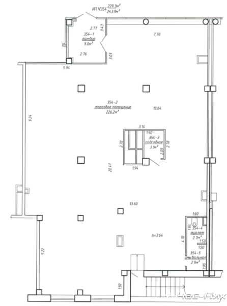
Площадь общ.: 243,9
-
Этаж/Этажность: 2/17
-
Материал стен: монолитный
-
Тип аренды: долгосрочная аренда
-
Вода: центральный водопровод
-
Горячая вода: есть горячая вода
-
Отопление: центральное отопление
-
Электричество: есть свет
-
Канализация: центральная канализация
Помещение общей площадью 243,9 кв.м с отделкой располагается на втором этаже (вход со стилобата) многоэтажного жилого дома на проспекте Победителей, 129. Помещение имеет отдельный вход. Хороший ремонт, стены окрашены, на полу плитка керамогранит, санузел обустроен. Проведена телефонная линия, оптоволокно, пожарная сигнализация. Арендная ставка 48,96 руб./кв.м с НДС. Возможна субаренда. Отличное местоположение в современном развитом районе Рядом остановки общественного транспорта, пр-т Победителей, автомобильная развязка МКАД Хороший пешеходный трафик. Многочисленные парковочные места возле дома. В доме расположились многочисленные организации, предоставляющие свои товары и услуги в сфере строительства и декора: напольные покрытия, обои, электрика, сантехника, дизайнерские студии и пр. Поможем подобрать помещение в аренду без дополнительных оплат.
Цена сделки определяется по соглашению сторон. Расчеты осуществляются в белорусских рублях в соответствии с законодательством Республики Беларусь.
Просмотров: сегодня 0, за последние 7 дней 5, за месяц 27







