сдам в аренду торговля, услуги г. Минск, Центральный район, Победителей пр. 129 (#436325)
-
Стоимость: м2 23.88 BYN / 8.51 $
-
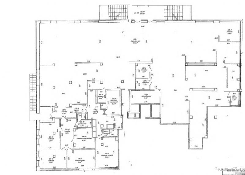
Площадь общ.: 833,3
-
Этаж/Этажность: 1/13
-
Материал стен: монолитный
-
Тип аренды: долгосрочная аренда
-
Вода: центральный водопровод
-
Горячая вода: есть горячая вода
-
Отопление: центральное отопление
-
Электричество: есть свет
-
Канализация: центральная канализация
Помещение общей площадью 833,3 кв.м с отделкой располагается на первом этаже многоэтажного жилого дома на проспекте Победителей, 129. Помещение имеет два отдельных входа. Проведена телефонная линия, оптоволокно, пожарная сигнализация. Высота потолков 2,7-3,0 м. Помещение с отделкой. Арендная ставка 23,88 руб./кв.м с НДС. Отличное местоположение в современном развитом районе Рядом остановки общественного транспорта, пр-т Победителей, автомобильная развязка МКАД Хороший пешеходный трафик Многочисленные парковочные места возле дома В доме расположились многочисленные организации, предоставляющие свои товары и услуги в сфере строительства и декора: напольные покрытия, обои, электрика, сантехника, дизайнерские студии и пр. Поможем подобрать помещение в аренду без дополнительных оплат.
Цена сделки определяется по соглашению сторон. Расчеты осуществляются в белорусских рублях в соответствии с законодательством Республики Беларусь.
Просмотров: сегодня 0, за последние 7 дней 7, за месяц 32







