сдам в аренду административно-торговое помещение г. Минск, Центральный район, Нововиленская ул. 53 (#436995)
-
Стоимость: м2 39.80 BYN / 14.05 $
-
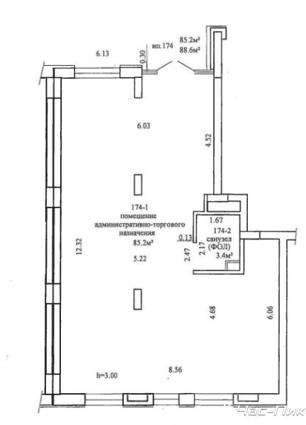
Площадь общ.: 88,6
-
Этаж/Этажность: 1/9
-
Материал стен: блочный
-
Тип аренды: долгосрочная аренда
-
Вода: центральный водопровод
-
Горячая вода: есть горячая вода
-
Отопление: центральное отопление
-
Электричество: свет рядом
-
Канализация: центральная канализация
Сдаётся в аренду административно-торговое помещение в ЖК "Левада". Помещение без отделки: на полу стяжка, стены - штукатурка, вывод электрики, сантехники. Отдельный вход. Свободный доступ, без ограждений и калиток. Может использоваться под аренду различных сфер торговли и услуг. Рядом большая парковочная зона. Арендная ставка 39,80 руб./кв.м с НДС. Дом сдан! В наличии есть другие предложения по аренде административно-торговых помещений, а также помещения под кафе. Поможем подобрать помещение в аренду без дополнительных оплат.
Цена сделки определяется по соглашению сторон. Расчеты осуществляются в белорусских рублях в соответствии с законодательством Республики Беларусь.
Просмотров: сегодня 0, за последние 7 дней 4, за месяц 22







