сдам в аренду административно-торговое помещение г. Минск, Центральный район, Победителей пр. 129 (#436993)
-
Стоимость: м2 47.76 BYN / 16.92 $
-
Площадь общ.: 246,7
-
Этаж/Этажность: 1/17
-
Материал стен: каркасно-блочный
-
Тип аренды: долгосрочная аренда
-
Вода: центральный водопровод
-
Горячая вода: есть горячая вода
-
Отопление: центральное отопление
-
Электричество: свет рядом
-
Канализация: центральная канализация
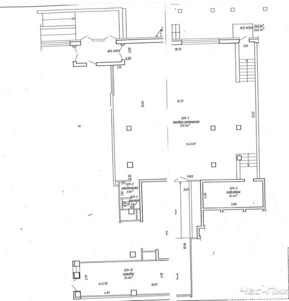
Помещение общей площадью 246,7 кв.м с отделкой располагается на первом этаже многоэтажного жилого дома на проспекте Победителей, 129. Арендная ставка 47,76 руб/кв.м с НДС. Помещение имеет два отдельных входа: один с проспекта, второй с торцевой части дома. Есть место для разгрузки товара. Проведена телефонная линия, оптоволокно, пожарная сигнализация. Помещение с отделкой. Отличное местоположение в современном развитом районе Рядом остановки общественного транспорта, пр-т Победителей, автомобильная развязка МКАД Хороший пешеходный трафик Многочисленные парковочные места возле дома В доме расположились многочисленные организации, предоставляющие свои товары и услуги в сфере строительства и декора: напольные покрытия, обои, электрика, сантехника, дизайнерские студии и пр. Поможем подобрать помещение в аренду без дополнительных оплат
Цена сделки определяется по соглашению сторон. Расчеты осуществляются в белорусских рублях в соответствии с законодательством Республики Беларусь.
Просмотров: сегодня 0, за последние 7 дней 6, за месяц 27







