ПРЕДВАРИТЕЛЬНАЯ ОЦЕНКА ОБЪЕКТА ПО АДРЕСУ: Минская обл., Пуховичский р-н, Туринский с-с., д.Слобода
Площадь: 56,4/33,2/17,7 (130,3 СНБ)
Год постройки: 1997
Материал стен внешних/внутренних: Кирпич
Этаж/этажность: 2
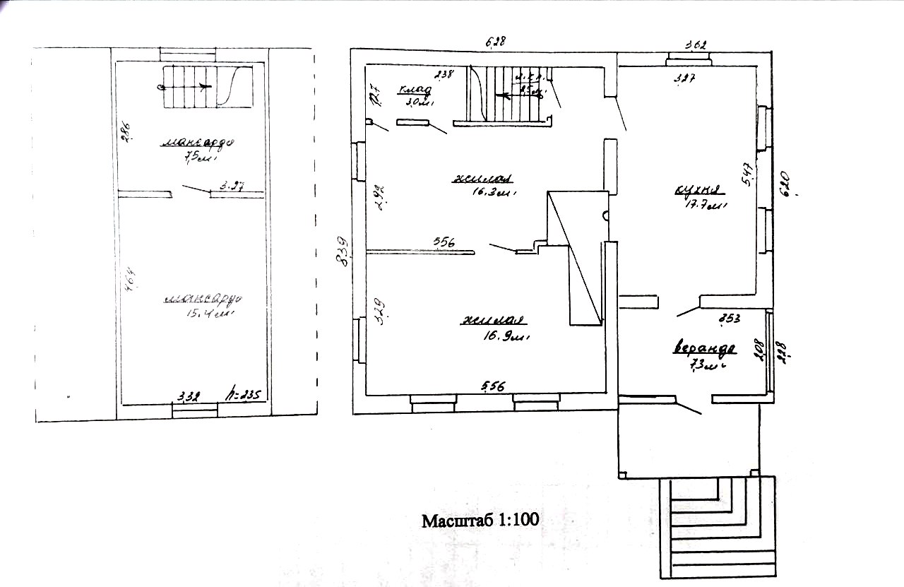
Планировка:


- Объект представляет собой частный дом. В доме имеется подвал и мансардный этаж. Фундамент дома бутовый, стены кирпичные, кровля шифер.
- Коммуникации: отопление печное. Имеется колодец возле дома, санузел на улице. Свет заведен в дом. Газ проходит рядом с домом.
- Планировка дома включает в себя: подвал, веранду, кухню, 2 жилые комнаты и комнату на мансардном этаже. Расположен дом на участке14,29 сот. Земельный участок находится в частной собственности. На участке имеются строения: баня (сруб), теплица (металл), санузел и колодец. Участок ровный правильной прямоугольной формы. Стоит отметить, что участок угловой и граничит только с одними соседями.
- Сам дом находится в хорошем жилом состоянии и позволяет заселиться сразу после приобретения. Окна пластиковые стены обшиты вагонкой, пол деревянный.
- Инфраструктура: рядом с домом имеется грибной лес, протекает река Свислочь. Очень тихое и спокойное место для отдыха от городской суеты.
Краткое описание объекта:
Объект представляет собой жилой дом (материал кирпич), отапливаемую деревянную пристройку, подвал. Фасад жилого дома кирпичный находится в аккуратном состоянии, не имеет повреждений, фундамент бутовый оштукатурен в хорошем состоянии, но имеет следы износа. Материал кровли шифер. Дом находится в трех уровнях. 1-ый уровень подвал, 2-й уровень состоит из 2 жилых комнат, кухни и отапливаемой веранды, 3-й уровень мансарда. Отапливается дом печкой, в комнате имеется лежанка, установлены стеклопакеты. Стены в комнатах отделаны вагонкой, полы деревянные. На кухне керамическая плитка, печь отделано плиткой. Придомовая территория большая имеет ровный ландшафт и позволяет разместить дополнительно беседку, навес или иное строение. На придомовой территории имеются постройки: баня, санузел, беседка и колодец. В пешей доступности речка и лес.
Конкурентный сегмент по состоянию на 19.11.2025 по отношению к анализируемому объекту:
|
МЕСТОПОЛОЖЕНИЕ |
СТОИМОСТЬ |
ССЫЛКА |
ПРИЕМУЩЕСТВА ПО СРАВНЕНИЮ С АНАЛИЗИРУЕМЫМ |
НЕДОСТАТКИ ПО СРАВНЕНИЮ С АНАЛИЗИРУЕМЫМ |
ВЫВОД |
|---|---|---|---|---|---|
| д. Слобода, ул. Слободская | 70 000 $ | https://realt.by/sale-cottages/object/3416911/ | Свежий ремонт, обустроенная баня и бильярд, построен позже, износ дома меньше. Площадь дома больше на 50м2. Участок больше на 10 соток | отсутствуют | Схожее состояние дома. Ремонт более свежий Участок больше на 10 соток. Продает АН более 12 месяцев |
|
д. Слобода, ул. Слободская |
130 000 $ | https://realt.by/sale-cottages/object/3900394/ | Дом построен 2 года назад. Качественный сруб, использованы более дорогие материалы отделки. Площадь дома больше на 100м2. Имеется газовое отопление, удобства в доме, видеонаблюдение | отсутствуют | Состояние дома значительно лучше. Размер дома больше. Участок схожих размеров. Продает АН более 6 месяц |
В таблице представлен анализ конкурентных объектов в д.Слобода. Нужно отметить, что анализируемые объекты находятся в более высоком ценовом диапазоне 70 000-130 000, больше по площади застройки и с лучшей отделкой. Эти объекты можно отнести к коттеджам, приспособленным для круглогодичного проживания.
Наш объект относится больше к дачному варианту с сезонным пребыванием. Рекомендуем ввести воду и канализацию в дом и произвести небольшой косметический ремонт. Эти мероприятия при небольших финансовых вложениях существенно увеличат стоимость при продаже объекта. Диапазон предварительно предполагаемой оценочной стоимости видим промежуток 22 000$-35 000$. При финансовых вложениях до 7000$ дом можно будет продавать от 30 000-70 000 $. Одновременно следует отметить, что цены в объявлениях и в реальных сделках не совпадают, по сему, работать следует по реакции рынка на заявленную рекламу. Это важно понимать, потому, как для наличия заинтересованности со стороны потенциальных покупателей следует выглядеть конкурентоспособным на фоне ближайших аналогов. А уже в дальнейшем работать с каждым потенциальным покупателем детерминировано его потребности, дабы склонить к наиболее выгодной для Вас цене. Повторимся, возможно, это лишь при конкурентоспособности объекта в рекламе.
Целевая аудитория семьи с двумя и более детьми. Минчане и жители близлежащих районов Беларуси.
Рекомендуется проведение очной консультации для уточнения недостающей информации и соответствующей корректировки оценки объекта, а также возможности более полного информирования Вас о месте оцениваемого объекта в настоящей конъектуре и стратегии работы с ним.
Свешников Ю.В. – риэлтер ООО «Час-Пик», +375 (29) 311-26-10







