ПРЕДВАРИТЕЛЬНАЯ ОЦЕНКА ОБЪЕКТА ПО АДРЕСУ Г. МИНСК, ул.Двинская, 52-2
Площадь: 198,7/125,0/33,0 (203,7 СНБ)
Год постройки: 2025
Материал стен внешних/внутренних: Газосиликатные блоки
Этаж/этажность: 3
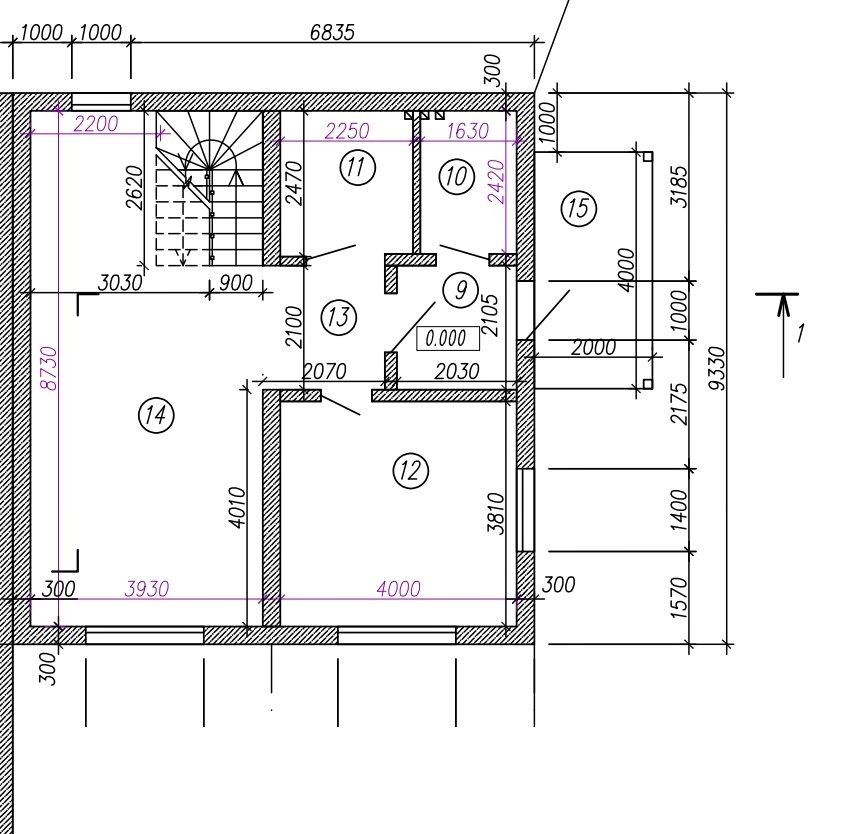
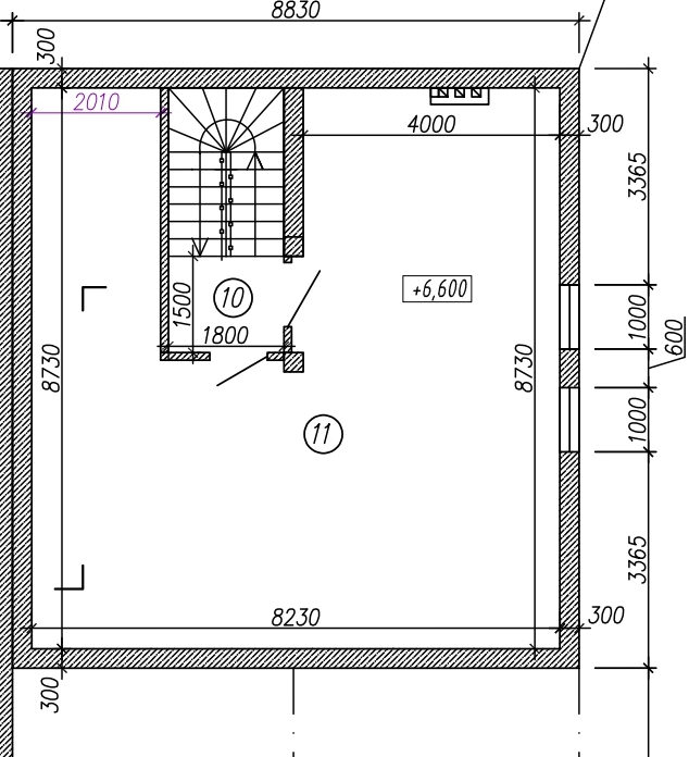
Планировка:



- Объект представляет собой 6 комнатную квартиру в блокированном 2-квартирном жилом доме. Дом состоит из 3 этажей. Нужно отметить, что к квартире относится доля во владении земельным участком 1/2 от 10.53 с., что составляет 5.275 с. Право пользование земельным участком не определено нотариально, однако по соглашению сторон участок разделен для удобства эксплуатации. Земельный участок находится в праве пожизненно наследуемого владения;
- Коммуникации: В квартиру введен газ и свет, центральный водопровод, подведена местная канализация.
- Сам объект находится в жилом состоянии, меблирован и позволяет заселиться сразу после приобретения.
Краткое описание объекта:
Квартира №2 представляет собой 3-этажный дом. Материал стен газосиликатный блок, кровля - металлочерепица. Фасад жилого дома утеплен и оштукатурен, но требует финишной отделки и покраски. Местами имеет косметические дефекты в виде потертостей и небольших повреждений. По периметру дома установлена система видеонаблюдения. Квартира№1 имеет отдельный вход, участки, принадлежащие квартире №1 и №2 огорожены для удобства эксплуатации.
Дом находится в партизанском районе с устоявшейся инфраструктурой. Несколько остановок от ст.метро Академия наук. Слепянская водная система, магазины, школы, сады в пешей доступности.
Касаемо внутреннего состояния квартиры нужно отметить, что отделка 1 и 2 этажей свежая, на полу ламинат, на стенах качественные обои, на кухне и в санузлах плитка. Потолки натяжные. 3 этаж имеет только черновую отделку.
Отдельно следует выделить преимущества планировки объекта. В первую очередь – это отсутствие проходных комнат, наличие двух просторных санузлов, большая гостиная комната, гардеробная. Окна расположены на три стороны дома. Из недостатков нужно отметить близость железной дороги.
Конкурентный сегмент по состоянию на 04.11.2025 по отношению к анализируемому объекту:
|
МЕСТОПОЛОЖЕНИЕ |
СТОИМОСТЬ |
ССЫЛКА |
ПРИЕМУЩЕСТВА ПО СРАВНЕНИЮ С АНАЛИЗИРУЕМЫМ |
НЕДОСТАТКИ ПО СРАВНЕНИЮ С АНАЛИЗИРУЕМЫМ |
ВЫВОД |
|---|---|---|---|---|---|
| ул. Солтыса, 123/1 |
84 000 $ 1235 $/м² |
https://realt.by/sale-cottages/object/3926067/ | Имеется центральный водопровод и местная канализация, заменены стеклопакеты | Отделка, сильный износ, Расположен в Партизанском районе и имеет хуже инфраструктуру | Схожее состояние, как и сравниваемая квартира. В продаже 20 дней, продает собственник |
|
ул. Столетова |
165 000 $ 1 700 $/м² |
https://realt.by/sale-cottages/object/3871443/ | Отделка, центральная канализация | Вторичное жилье. Меньшая площадь квартиры, меньше земельный участок, хуже планировка (отсутствие веранды, 2го санузла в доме) | Продает собственник более 2 месяцев. Цена не менялась. На мой взгляд, стоимость завышена |
| ул.Авангардная, 4 |
129 900 $ 1 202 $/м² |
https://realt.by/sale-cottages/object/3805005/ | Материал кирпичи состояние стен дома, больше площадь дома и площадь земельного участка | Хуже отделка внутри квартиры. Требует ремонта | Продает АН более 4 месяцев. Цена за это время снизилась на 4000 дол. |
| пер. Передовой, 13 |
169 900$ 1 490 $/м² |
hhttps://realt.by/sale-cottages/object/3419113/ | Отдельный дом | Вторичное жилье. Хуже отделка | Продает собственник более 3х месяцев. |
| ул. Аннаева, 56 |
180 000 $ 1500 $/м² |
https://realt.by/sale-cottages/object/3657495/ | Больше по площади отапливаемая площадь 330 м2. Наличие бани и большого гаража на участке. | Устаревшая отделка, низкие потолки | Объект в продаже около 3-х месяцев, продает собственник |
В таблице представлен анализ конкурентных объектов по потребительским свойствам. Видится рациональным сравнивать с последними 4-мя вариантами, так как первый вариант значительно уступает по качеству отделки и общей квадратуре. Диапазон предварительно предполагаемой оценочной стоимости видим промежуток 129 900 – 180 000 USD. Одновременно следует отметить, что цены в объявлениях и в реальных сделках не совпадают.
Целевая аудитория люди от 35-50 лет, которые достигли финансовой стабильности и стремятся к улучшению качества жизни. Молодые семьи с двумя и более детьми. Приезжие с областных городов Беларуси.
Резюмируя, отметим, что за основу предлагаем привязать ориентировочную стоимость к средней цене предложений исходя из схожих характеристик дома исходя из стоимости квадратного метра из расчета 1 100-1 200 дол за м2. Рекомендуем установить стоимость объекта в диапазоне 137 500-150 000 дол.
Рекомендуется проведение очной консультации для уточнения недостающей информации и соответствующей корректировки оценки объекта, а также возможности более полного информирования Вас о месте оцениваемого объекта в настоящей конъектуре и стратегии работы с ним.
Свешников Ю.В. – риэлтер ООО «Час-Пик», +375 (29) 311-26-10







