ПРЕДВАРИТЕЛЬНАЯ ОЦЕНКА ОБЪЕКТА ПО АДРЕСУ Г. МИНСК, ул.Аннаева, 35-1
Площадь: 143,1/73,8/18,8 (170,7 СНБ)
Год постройки: 2022
Материал стен внешних/внутренних: Газосиликатные блоки
Этаж/этажность: 2
Планировка:


- Объект представляет собой 5-комнатную квартиру в блокированном 3-квартирном жилом доме. Дом состоит из 2 этажей и чердака. Нужно отметить, что к квартире относится доля во владении земельным участком 1/3 от 9.35 сот., что составляет 3.12 сот. Право пользование земельным участком определено по соглашению сторон, что зафиксировано нотариально. Земельный участок находится в праве пожизненно наследуемого владения. Назначение для строительства и обслуживания жилого дома;
- Коммуникации: В квартиру введен газ и свет, центральный водопровод, подведена местная канализация, проложено оптоволокно.
- Сам объект находится в жилом состоянии, меблирован и позволяет заселиться сразу после приобретения. Отделка свежая.
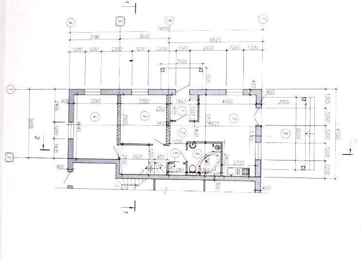
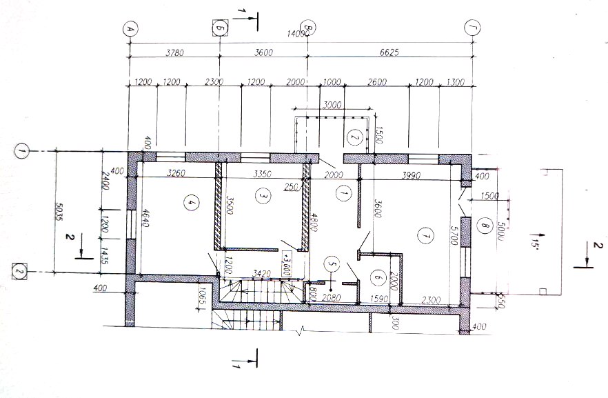
Краткое описание объекта:
Квартира №1 представляет собой 2-этажный дом с чердачным помещением. Материал стен газосиликатный блок, кровля-металлочерепица. Фасад жилого дома утеплен и оштукатурен, и окрашен. По периметру дома установлена система видеонаблюдения. Квартира №1 имеет отдельный вход, участки, принадлежащие квартире №2 и №3, огорожены для удобства эксплуатации. На придомовой территории, относящейся к квартире №1, имеется гараж.
На первом этаже дома размещены 2-е жилые комнаты, совмещенный санузел, гостиная и веранда.
Второй этаж включает в себя 3 жилые комнаты совмещенный санузел и большой балкон 12м2.
Дом находится в Партизанском районе. Рядом с домом остановка общественного транспорта магазины, школы, сады в пешей доступности. Несколько остановок от ст.метро Академия наук. Слепянская водная система.
Отделка 1 и 2 этажей свежая, на полу ламинат, в гостиной и коридоре на первом этаже нанесена декоративная штукатурка, на стенах качественные обои, в гостиной и в санузлах плитка. Потолки натяжные. Чердак утеплен и обшит вагонкой. Выход на чердак осуществляется через комнату на 2-ом этаже.
Отдельно следует выделить преимущества планировки объекта. В первую очередь – это отсутствие проходных комнат, наличие двух просторных санузлов, большая гостиная комната, просторная веранда и большой балкон. Окна расположены на три стороны дома. Нужно отметить перспективу обустройства чердачного помещения под жилую комнату.
Конкурентный сегмент по состоянию на 21.11.2025 по отношению к анализируемому объекту:
|
МЕСТОПОЛОЖЕНИЕ |
СТОИМОСТЬ |
ССЫЛКА |
ПРИЕМУЩЕСТВА ПО СРАВНЕНИЮ С АНАЛИЗИРУЕМЫМ |
НЕДОСТАТКИ ПО СРАВНЕНИЮ С АНАЛИЗИРУЕМЫМ |
ВЫВОД |
|---|---|---|---|---|---|
| г. Минск, ул. Кубанская, 9 | 225 000 $ | https://realt.by/sale-cottages/object/3948749/ | Новострой. Дом построен 2025г. Качественные материалы. Фальцевая кровля, керамзито-бетон. Энергоэффективные окна. Большая площадь дома и участка | Отсутствие чистовой отделки, хуже расположение | В продаже 20 дней продает собственник |
| г. Минск, ул. Столетова | 225 000 $ | https://realt.by/sale-cottages/object/3920786/ | Новострой. Дом построен 2025г. Отдельно стоящий дом без соседей | Отсутствие чистовой отделки | Объект в продаже около 5-ти месяцев, продает АН |
| г. Минск, ул.Авангардная, 4 | 129 000 $ | https://realt.by/sale-cottages/object/3805005/ | Материал кирпичи состояние стен дома, больше площадь дома и площадь земельного участка | Хуже отделка внутри квартиры. Требует ремонта | Продает АН более 4 месяцев. Цена за это время снизилась на 4000 дол. |
| г. Минск, пер.Передовой, 13 | 169 900 $ | https://realt.by/sale-cottages/object/3419113/ | Отдельный дом | Вторичное жилье. Хуже отделка | Продает собственник более 3х месяцев |
| г. Минск, Аннаева, 56 | 180 000 $ | https://realt.by/sale-cottages/object/3657495/ | Больше по площади отапливаемая площадь 330 м2. Наличие бани и большого гаража на участке | Устаревшая отделка, низкие потолки | Объект в продаже около 3-х месяцев, продает собственник |
| г. Минск, ул. Столетова | 165 000 $ | https://realt.by/sale-cottages/object/3871443/ | центральная канализация | Вторичное жилье. Меньшая площадь квартиры, меньше земельный участок, хуже планировка (отсутствие веранды, 2го санузла в доме) | Продает собственник более 2 месяцев. Цена не менялась. На мой взгляд, стоимость завышена |
В таблице представлен анализ конкурентных объектов по потребительским свойствам. Стоит отметить, что все объекты, относящиеся к частному сектору и имеющие индивидуальную застройку уникальны. Определить их стоимость зачастую сложно. Так первые два объекта в таблице представляют собой новые строения без чистовой отделки. Они представляют ценность для тех, кто хочет сделать ремонт «под себя». Эти объекты имеют большую перспективу, однако требуют серьезных финансовых вложений. Второй момент — это объекты, которые представляют собой отдельный дом, а не квартиру в блокированном жилом доме. Такие дома представляют наибольший интерес для покупателей, ввиду отсутствия соседей за стенкой и отсутствие необходимость в получении согласия на производство строительных и ремонтных работ в доме. Существенный недостаток этих домов это высокая стоимость. В анализе взяты объекты стоимостью от 129 900 – 255 000 USD.
Считаем рациональным сравнивать с последними 4-мя вариантами. Диапазон предварительно предполагаемой оценочной стоимости видим промежуток 129 900 – 180 000 USD. Одновременно следует отметить, что цены в объявлениях и в реальных сделках не совпадают.
Целевая аудитория люди от 35-50 лет, которые достигли финансовой стабильности и стремятся к улучшению качества жизни. Молодые семьи с двумя и более детьми. Приезжие с областных городов Беларуси.
Резюмируя, отметим, что за основу предлагаем привязать ориентировочную стоимость к средней цене предложений, исходя из схожих характеристик дома исходя из стоимости квадратного метра из расчета. Рекомендуем установить стоимость объекта в диапазоне 130 000-150 000 дол.
Рекомендуется проведение очной консультации для уточнения недостающей информации и соответствующей корректировки оценки объекта, а также возможности более полного информирования Вас о месте оцениваемого объекта в настоящей конъектуре и стратегии работы с ним.
Свешников Ю.В. – риэлтер ООО «Час-Пик», +375 (29) 311-26-10







