VIP продам 5-комнатную квартиру г. Минск, Центральный район, микрорайон ул. Киселева, Киселёва ул. 6Ж (#437811)
-
Стоимость: 2 130 570 BYN
м2: 10 021 BYN
-
Количество комнат: 5/5
-
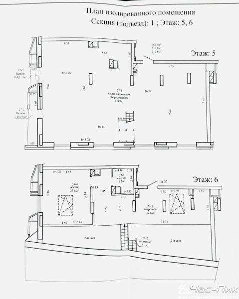
Площадь общ./жил./кух.: 212,6/162,6/138,8
-
Этаж/Этажность: 5/6
-
Материал стен: каркасно-блочный
-
Год постройки: 2025
-
Высота потолков: 3,8 м
-
Балкон: 2 балкона
-
Туалет: 2 сан. узла и более
Продаётся премиальная двухуровневая квартира-пентхаус в каркасно-блочном доме в престижном жилом комплексе "Депо" в центре Минска" в г.Минск, ул.Киселёва, дом 6Ж; приглашаем на осмотр; чистая продажа от 1 собственника; все документы к продаже! Дом сдан! Паркинг! Кладовка! Новый дом 2025 года, сдан в эксплуатацию; 5/6 этаж; Продуманная свободная планировка квартиры: общая площадь общая по СНБ: 212,6 м2; второй свет; жилая с кухонным оборудованием-138,8 м2; жилая-23,8 м2; антресоль-37,8 м2; балкон1-4,5 м2; балкон2-1,3 м2; санузел-4,7 м2; высота потолка-3,8; аккуратный подъезд; респектабельные соседи; качественный лифт! Престижный район в самом центре столицы, в котором расположен дом в ЖК "Депо", не оставит никого равнодушным: обилие зеленых зон, современные детские площадки, развитая инфраструктура создают полноценный комфорт для проживающих жильцов; удобное транспортное сообщение, автобусы, маршрутное такси. Хорошие подъездные пути к дому. Видеонаблюдение по периметру дома, закрытая ограждённая территория! Социальная инфраструктура на доступном расстоянии: аптека, школы, гимназия, детские сады, детские площадки, почта, банк, салоны красоты; магазины, кафе и рестораны и другие объекты социально-бытового обслуживания, "Парк Горького". Отличное транспортное сообщение! Все это работает исключительно для Вас! Поможем профессионально быстро и выгодно продать Вашу недвижимость в связи с покупкой вышеуказанного объекта недвижимости, размещение рекламных объявлений на лучших специализированных интернет площадках Республики Беларуси, России, стран ближнего и дальнего зарубежья-70 стран мира, Профессиональная фото-видео-аэросъемка, рекламные ролики в социальных сетях, а также использование самых современных и уникальных технологий для успешной продажи Вашего объекта недвижимости. Ответим на Ваши вопросы, предоставим всю необходимую информацию. Напишите Нам в удобный для Вас мессенджер: Viber | Telegram | WhatsApp. Риэлтер Александр Владимирович.
Цена сделки определяется по соглашению сторон. Расчеты осуществляются в белорусских рублях в соответствии с законодательством Республики Беларусь.
Просмотров: сегодня 0, за последние 7 дней 15, за месяц 48







