продам дом Минская обл., Смолевичский район, д. Шеметово, Пинская ул. 1 (#437874)
-
Стоимость: 448 157 BYN / 159 000 $
Торг
-
Количество комнат: 3
-
Участок: 14 соток
-
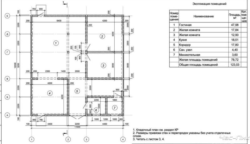
Площадь общ./жил./кух.: 120,2/77,3/17,7
-
Этажей: 1
-
Материал стен: деревянный
-
Год постройки: 2026
-
Вода: вода из скважины
-
Отопление: электрическое отопление
-
Электричество: свет 220В + 380В
-
Канализация: местная канализация
Фахверковый дом премиального уровня в сосновом лесу это эстетика, надежность и комфорт в каждой детали. Современный фахверковый дом, в котором сочетаются архитектурная выразительность, высокое качество материалов и продуманная инженерия для комфортной жизни в любое время года. Конструктив дома выполнен из клеёного бруса сечением 200×200 мм - это прочность, долговечность, идеальная геометрия и благородный внешний вид натурального дерева. Такой дом не только выглядит статусно, но и обеспечивает высокий уровень надежности на десятилетия. Особое внимание уделено энергоэффективности: Стены утеплены каменной ватой 150 мм; Кровля утеплена каменной ватой 200 мм; Кровельное покрытие — металлочерепица, практичная, долговечная и эстетичная. В доме уже выполнена чистовая стяжка, что существенно ускоряет переход к финишной отделке и экономит ваше время и бюджет. По всему дому смонтированы теплые полы, создающие равномерное, мягкое тепло и максимальный комфорт в холодный сезон. Дополнительно предусмотрены выходы под конвекторы, что дает больше гибкости в настройке системы отопления под ваши предпочтения. Настоящая гордость этого дома — огромные панорамные энергоэффективные окна с тонировкой в массе. Они наполняют пространство светом, визуально расширяют интерьер, открывают потрясающий обзор и при этом сохраняют приватность, комфортный микроклимат и высокую теплоизоляцию. Это дом для тех, кто ценит: стильную архитектуру, качественные материалы, современные технологии и атмосферу загородной жизни без компромиссов. Эксклюзивный новый уникальный коттедж в сосновом лесу в престижном коттеджном посёлке "Шеметово"; Московское направление; приглашаем на просмотр! Торг! Энергоэффективный дом; построенный по индивидуальному архитектурному дизайн-проекту; продуманная архитектурная планировка; все строительные и отделочные работы выполнялись по проектным чертежам, в строгом соответствии с технологическими процессами и знаниями новейших тенденций современного деревянного загородного строительства; высококачественные материалы строительства; долговечный и надёжный конструктив: -Коммуникации: свет 380-10 квт, водопровод скважина 90 метров, канализация автономная, интернет! -Земельный участок 14 соток, сосны на участке; -Респектабельные соседи! -Коттеджный Посёлок «Шеметово» с подъездными путями по асфальтированным дорогам, расположен в экологически чистой местности, окружен лесными массивами; 20 минут до Минска! -Развитая инфраструктура на доступном расстоянии: магазины, школа и детский сад, почта, банк, медучреждения и аптеки. -Чистейший сосновый лес, рыбалка, грибы, ягоды. Одно из лучших мест в пригороде Минска для жизни и отдыха, не упустите свой шанс приобрести великолепный загородный особняк, для успешных людей, торг. Поможем профессионально быстро и выгодно продать Вашу недвижимость в связи с покупкой вышеуказанного объекта недвижимости, размещение рекламных объявлений на лучших специализированных интернет площадках Республики Беларуси, России, стран ближнего и дальнего зарубежья-70 стран мира, Профессиональная фото-видео-аэросъемка, рекламные ролики в социальных сетях, а также использование самых современных и уникальных технологий для успешной продажи Вашего объекта недвижимости. Ответим на Ваши вопросы, предоставим всю необходимую информацию. Напишите Нам в удобный для Вас мессенджер: Viber | Telegram | WhatsApp.
Цена сделки определяется по соглашению сторон. Расчеты осуществляются в белорусских рублях в соответствии с законодательством Республики Беларусь.
Просмотров: сегодня 0, за последние 7 дней 10, за месяц 52







