VIP продам коттедж Минская обл., Минский район, аг. Колодищи, Шпитальника ул. 6 (#437755)
-
Стоимость: 1 274 760 BYN / 450 000 $
Торг
-
Количество комнат: 5
-
Участок: 15,1 соток
-
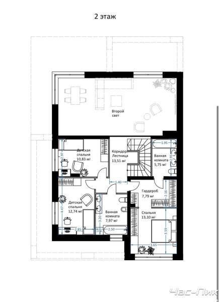
Площадь общ./жил./кух.: 200/140/51
-
Этажей: 2
-
Материал стен: блочный
-
Год постройки: 2025
-
Вода: центральный водопровод
-
Отопление: электрическое отопление
-
Электричество: свет 220В + 380В
-
Газ: рядом газ
-
Канализация: местная канализация
Продаётся эксклюзивный новый стильный коттедж премиум-класса примыкающий к лесу с собственным с выходом в Глебковский биосферный заказник в престижном коттеджном посёлке аг.Колодищи, Московское направление, Минский район, 8 км от границ г.Минска, (10 минут до станции метро `Уручье`), ул.Шпитальника; приглашаем на просмотр, торг! Высококачественные материалы строительства и отделки: -Дом построен по индивидуальному архитектурному дизайн-проекту; -Продуманная архитектурная планировка, 5-комнатный, высота потолков в гостиной 5,8 метра, все строительные работы выполнялись по проектным чертежам, в строгом соответствии с технологическими процессами и знаниями новейших тенденций современного загородного строительства; -Стены 40 см керамзитобетонные блоки, декоративной штукатуркой; -Эксплуатируемая кровля (бетонная плита 20 см, утепление 20 см, эксплуатируемое гидроизоляционное кровельное покрытие), ливневая система; -Качественные панорамные энергосберегающие стеклопакеты с ламинацией; -Жилая современная коттеджная застройка, респектабельные соседи; -Все коммуникации: свет 380, газ, центральный водопровод, автономная канализация, оптоволокно; -Ворота откатные с электроприводом, дизайнерский забор; - Земельный участок 15 соток, мощение тротуарной плиткой; Развитая инфраструктура в застройке: асфальт, остановка городского автобуса, магазины`Евроопт`, новая школа с бассейном на 720 учащихся и детский сад, маршрутное такси, "Глебковский биосферный заказник", удобный подъезд, одно из лучших мест в пригороде Минска для жизни, не упустите свой шанс приобрести великолепный загородный особняк, для успешных людей, чистая продажа. Поможем профессионально быстро и выгодно продать Вашу недвижимость в связи с покупкой вышеуказанного объекта недвижимости, размещение рекламных объявлений на лучших специализированных интернет площадках Республики Беларуси, России, стран ближнего и дальнего зарубежья-70 стран мира, Профессиональная фото-видео-аэросъемка, рекламные ролики в социальных сетях, а также использование самых современных и уникальных технологий для успешной продажи Вашего объекта недвижимости. Ответим на Ваши вопросы, предоставим всю необходимую информацию. Напишите Нам в удобный для Вас мессенджер: Viber | Telegram | WhatsApp. Риэлтер Александр Владимирович.
Цена сделки определяется по соглашению сторон. Расчеты осуществляются в белорусских рублях в соответствии с законодательством Республики Беларусь.
Просмотров: сегодня 0, за последние 7 дней 4, за месяц 24







