VIP продам коттедж Минская обл., Минский район, д. Дроздово, Весенний пер. 2 (#437727)
-
Стоимость: 2 438 055 BYN / 850 000 $
Торг
-
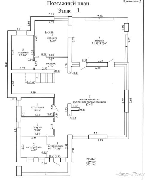
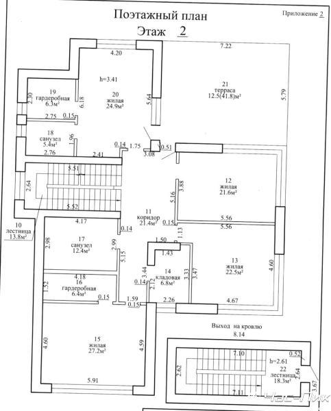
Количество комнат: 6
-
Участок: 16,3 соток
-
Площадь общ./жил./кух.: 372,1/215/87,4
-
Этажей: 2
-
Материал стен: кирпичный
-
Год постройки: 2025
-
Вода: вода из скважины
-
Отопление: газовое отопление
-
Электричество: свет 220В + 380В
-
Газ: есть газ
-
Канализация: местная канализация
Продаётся эксклюзивный новый стильный энергоэффективный коттедж премиум-класса из кирпича в престижном коттеджном посёлке "д.Дроздово", пер.Весенний, Логойское направление, Минский район, 1 км от границ г.Минска; (5 минут до Логойского тракта); асфальт до участка; сосны на участке, приглашаем на просмотр, торг! Высококачественные материалы строительства и отделки: -Энергоэффективный кирпичный дом - построенный в 2025 году по индивидуальному архитектурному дизайн-проекту; два уровня с выходом на эксплуатируемую кровлю; -Современная топочная с погодозависимой автоматикой, газовый котёл с бойлером, радиаторы, тёплые полы; насосные группы; -Продуманная архитектурная планировка, 6-ти комнатный, высота потолков 3,9 метра; все строительные работы выполнялись по проектным чертежам, в строгом соответствии с технологическими процессами и знаниями новейших тенденций современного загородного строительства; -Стены 40 см кирпичные с утеплением каменной ватой ватой 15 см, декоративной штукатуркой, клинкером; -Эксплуатируемая кровля (железобетонная монолитная плита 20 см, утепление 25 см, эксплуатируемое гидроизоляционное кровельное покрытие), ливневая система с дренажной канализацией; -Качественные алюминиевые панорамные энергосберегающие стеклопакеты с ламинацией; подсветка фасада; -Жилая современная коттеджная застройка, респектабельные соседи; -Все коммуникации: свет 380, газ, водопровод - скважина, автономная канализация, оптоволокно-интернет; - Земельный участок 16,3 соток, частная собственность(приватизирован); Развитая инфраструктура на доступном расстоянии: остановка маршрутного такси, магазины, школа и детский сад, лесной массив, удобный подъезд, одно из лучших мест в пригороде Минска для жизни, не упустите свой шанс приобрести великолепный загородный особняк, для успешных людей, чистая продажа. Поможем профессионально быстро и выгодно продать Вашу недвижимость в связи с покупкой вышеуказанного объекта недвижимости, размещение рекламных объявлений на лучших специализированных интернет площадках Республики Беларуси, России, стран ближнего и дальнего зарубежья-70 стран мира, Профессиональная фото-видео-аэросъемка, рекламные ролики в социальных сетях, а также использование самых современных и уникальных технологий для успешной продажи Вашего объекта недвижимости. Ответим на Ваши вопросы, предоставим всю необходимую информацию. Напишите Нам в удобный для Вас мессенджер: Viber | Telegram | WhatsApp. Риэлтер Александр Владимирович.
Цена сделки определяется по соглашению сторон. Расчеты осуществляются в белорусских рублях в соответствии с законодательством Республики Беларусь.
Просмотров: сегодня 1, за последние 7 дней 5, за месяц 25







