VIP продам коттедж г. Минск, Центральный район, Янтарная ул. 7 (#436006)
-
Стоимость: 938 763 BYN / 325 000 $
Торг
-
Количество комнат: 5
-
Участок: 10,9 соток
-
Площадь общ./жил./кух.: 377,3/153,3/42,5
-
Этажей: 3
-
Материал стен: блочный
-
Год постройки: 2010
-
Вода: центральный водопровод
-
Отопление: газовое отопление
-
Электричество: свет 220В + 380В
-
Газ: есть газ
-
Канализация: центральная канализация
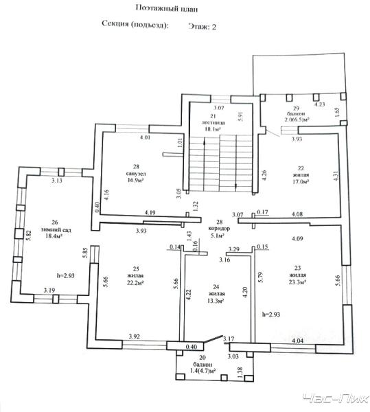
Продаётся престижный энергоэффективный современный коттедж в коттеджной застройке "Зацень" г.Минск, ул.Янтарная; лесной сосновый массив; приглашаем на просмотр; торг! Высококачественные материалы строительства; три уровня; продуманная архитектурная планировка, позволяющая реализовывать различные идеи и задумки; выполнена разводка сантехники и электрики; в цокольном этаже установлен камин; первый этаж – кухня-гостиная-столовая с выходом на террасу; второй этаж – жилые комнаты; в зависимости от желаний и фантазии, имеется возможность обустроить и зимний сад, и просторную гардеробную, и рабочий кабинет; на всех уровнях санузлы; на первом этаже установлена джакузи, на втором этаже ванная и инсталляция; в цокольном этаже запроектирована сауна с душевой кабиной. Итальянская плитка в подарок покупателю. Фундамент монолитный железобетонный; Стены блочные с утеплением и декоративной штукатуркой; Кровля - мягкая битумная черепица "Катепал", стропильная система делалась с большим запасом прочности; Качественные стеклопакеты; Энергоэффективная топочная с погодозависимой автоматикой и газовым котлом; Все центральные коммуникации в доме: свет, газ, центральный водопровод, центральная канализация, оптоволокно (телефон-интернет), сигнализация, асфальт до участка; Ландшафтный дизайн, автополив, противокротовая сетка. Жилая современная коттеджная застройка; остановка городского автобуса; ровный рельеф участка; на доступном расстоянии: магазины; школа и детский сад ; одно из лучших мест в Минске для жизни; все документы к продаже в соответствии с действующим законодательством РБ; торг. Поможем профессионально быстро и выгодно продать Вашу недвижимость в связи с покупкой вышеуказанного объекта недвижимости, размещение рекламных объявлений на лучших специализированных интернет площадках Республики Беларуси, России, стран ближнего и дальнего зарубежья-70 стран мира, Профессиональная фото-видео-аэросъемка, рекламные ролики в социальных сетях, а также использование самых современных и уникальных технологий для успешной продажи Вашего объекта недвижимости. Ответим на Ваши вопросы, предоставим всю необходимую информацию. Напишите Нам в удобный для Вас мессенджер: Viber | Telegram | WhatsApp. +375293844155 риэлтер Александр Владимирович.
Цена сделки определяется по соглашению сторон. Расчеты осуществляются в белорусских рублях в соответствии с законодательством Республики Беларусь.
Просмотров: сегодня 1, за последние 7 дней 7, за месяц 38







