продам офис Минская обл., Минский район, д. Тарасово, Придорожная ул. 1/14 (#437716)
-
Стоимость: 728 400 BYN / 250 000 $
м2: 1 101 $ Торг
-
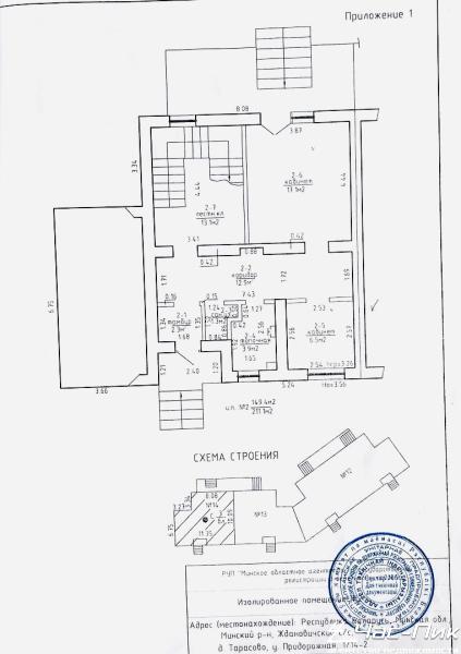
Площадь общ.: 227
-
Этаж/Этажность: 1/2
-
Материал стен: блочный
-
Вода: центральный водопровод
-
Горячая вода: есть горячая вода
-
Отопление: газовое отопление
-
Электричество: есть свет
-
Газ: есть газ
-
Канализация: центральная канализация
Продаётся офисное здание 100% готовности в д.Тарасово, ул.Придорожная, 1/14; Гродненское направление, 1 км от МКАД (5 минут до станции метро "Каменная Горка"), приглашаем на просмотр! -Энергоэффективное здание 2011 года; продуманная архитектурная планировка, все строительные и отделочные работы выполнялись по проектным чертежам, в строгом соответствии с технологическими процессами и знаниями новейших тенденций современного строительства; высококачественные материалы строительства и отделки; долговечный и надёжный конструктив: -Фундамент - монолитный железобетонный с утеплением и гидроизоляцией; -Стены блочные с утеплением каменной ватой и декоративной штукатуркой; -Силиконовая заколерованная декоративная штукатурка, атмосферостойкая, водоотталкивающая, самомоющаяся, обеспечивает качественную защиту фасада от атмосферных воздействий, плесени и грибка; -Кровля - черепица с утеплением; -Качественные энергосберегающие стеклопакеты; -Отопление газовое, насосные группы, радиаторы, водяные тёплые полы; -Все центральные коммуникации: свет 380, газ, центральный водопровод, центральная канализация, оптоволокно (телефон-интернет), видеонаблюдение, видеодомофон, кондиционирование, асфальт; -Парковка два авто; - «д.Тарасово» с подъездными путями по асфальтированным дорогам, расположен в экологически чистой местности, окружен лесными массивами. -Транспортное сообщение с Минском: городской маршрутный автобус; маршрутное такси. -Развитая инфраструктура на доступном расстоянии: супермаркеты, магазины, школа и детский сад, почта, банк, медучреждения и аптеки. Чистейшие сосновые леса, грибы, ягоды. Одно из лучших мест в пригороде Минска, не упустите свой шанс приобрести великолепный объект недвижимости! Поможем профессионально быстро и выгодно продать Вашу недвижимость в связи с покупкой вышеуказанного объекта недвижимости, размещение рекламных объявлений на лучших специализированных интернет площадках Республики Беларуси, России, стран ближнего и дальнего зарубежья-70 стран мира, Профессиональная фото-видео-аэросъемка, рекламные ролики в социальных сетях, а также использование самых современных и уникальных технологий для успешной продажи Вашего объекта недвижимости. Ответим на Ваши вопросы, предоставим всю необходимую информацию. Напишите Нам в удобный для Вас мессенджер: Viber | Telegram | WhatsApp. Риэлтер Александр Владимирович.
Цена сделки определяется по соглашению сторон. Расчеты осуществляются в белорусских рублях в соответствии с законодательством Республики Беларусь.
Просмотров: сегодня 0, за последние 7 дней 9, за месяц 28







